公司動態
裝配式搪瓷板給茄子果酱APP官网圖集
點擊下載:不鏽鋼茄子果酱APP官网圖集 12S101 PDF格式
裝配式搪瓷板給茄子果酱APP官网圖集 平麵圖:
裝配式搪瓷板給茄子果酱APP官网圖集 選用表:
裝配式搪瓷板給茄子果酱APP官网圖集 標準板圖:
裝配式搪瓷板給茄子果酱APP官网圖集 基礎圖一:
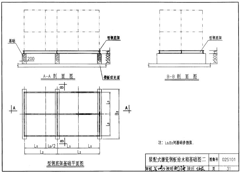
裝配式搪瓷板給茄子果酱APP官网圖集 基礎圖二:
相關資訊
茄子福利视频导航資訊 jlxdsy.com
聯係茄子视频在线观看污
電話:027-83893889
手機:15926221333 王經理
電話:027-83893889
傳真:027-83386079
Q Q:7748867
郵箱:wwxpp@126.com
工廠地址:武漢市東西湖區吳家山田園大道新城十四路

微信服務號




鄂公網安備 42011202000782號